2006-2009 PROJECT AND CONSTRUCTION MANAGEMENT  
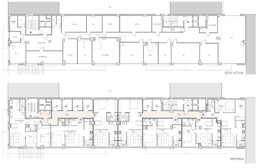
Reform school plant use in homes. Barcelona. ENCA 2006 S.L. 128.000 €
IR A OBRAS
IR A CONCURSOS
IR A INICIO
JOSEP SÁNCHEZ FERRÉ. ARCHITECT - C/Mallorca 192, 6 - Barcelona- T. 934 520 407 - sanchezferre@coac.es